碳纤维管与铝合金的胶接过程
大家应该知道碳纤维辊轴是由碳纤维管和铝件两个部分构成,这两个部分是怎么胶接在一起的呢?无锡星欧娱乐注册新材料科技有限公司生产辊轴已有多年经验,在这方面技术非常成熟。下面给大家分享一下他们的工艺吧:
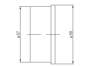
碳纤维管选用聚丙烯腈基T300-3k 碳纤维缠绕型管材,拉伸强度为3.53G Pa,抗压强度为2.02GPa,密度为 1.76g/cm3;铝件材料为铝合金7075。考虑到胶接工艺,铝件与碳纤维管端部采用套接方案。碳纤维管与铝件接头如图所示,我们的碳纤维管设计了一个止口,和铝件接头是一个紧配合的状况,这样的设计可使铝件接头与碳纤维管在装配时的同心度,同时也保证了铝件接头表面与碳纤维管内表面之间胶层厚度的均匀性。接着我们用敲击的方式将铝件均匀的装配到碳纤维管内,有部分胶水溢出,这表明铝件和碳纤维管融合在一起了,胶层已没有空气存在。
还有一个不能忽视的重要细节,在粘接前碳纤维管和铝件的清洁工作。首先用蒸馏水对铝件表面进行清洗,待干燥后放入丙酮溶液中,在超声波清洗机中进行清洗去脂5min,取出晾干或保存在干燥箱中。碳纤维管也同样需要用酒精搽试干净,这样避免灰尘杂质干扰胶接效果。
相比以前普通材质,碳纤维强度好,轻量化,耐腐蚀,客户反馈效果非常好,通过测试我公司生产的碳纤维辊最高转速能达到1000r/min以上。如有需要可以致电我们,主要经营碳纤维、玻璃纤维制品、树脂基复合材料。
碳纤维管选用聚丙烯腈基T300-3k 碳纤维缠绕型管材,拉伸强度为3.53G Pa,抗压强度为2.02GPa,密度为 1.76g/cm3;铝件材料为铝合金7075。考虑到胶接工艺,铝件与碳纤维管端部采用套接方案。碳纤维管与铝件接头如图所示,我们的碳纤维管设计了一个止口,和铝件接头是一个紧配合的状况,这样的设计可使铝件接头与碳纤维管在装配时的同心度,同时也保证了铝件接头表面与碳纤维管内表面之间胶层厚度的均匀性。接着我们用敲击的方式将铝件均匀的装配到碳纤维管内,有部分胶水溢出,这表明铝件和碳纤维管融合在一起了,胶层已没有空气存在。

a) 碳纤维管

b) 铝合金
还有一个不能忽视的重要细节,在粘接前碳纤维管和铝件的清洁工作。首先用蒸馏水对铝件表面进行清洗,待干燥后放入丙酮溶液中,在超声波清洗机中进行清洗去脂5min,取出晾干或保存在干燥箱中。碳纤维管也同样需要用酒精搽试干净,这样避免灰尘杂质干扰胶接效果。
相比以前普通材质,碳纤维强度好,轻量化,耐腐蚀,客户反馈效果非常好,通过测试我公司生产的碳纤维辊最高转速能达到1000r/min以上。如有需要可以致电我们,主要经营碳纤维、玻璃纤维制品、树脂基复合材料。